
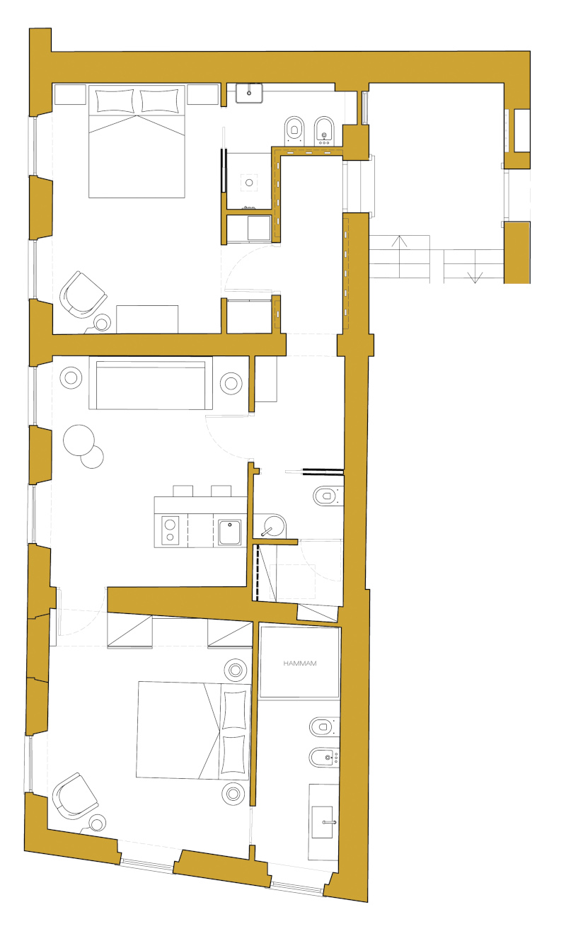
Penthouse Suite
Casa Crossing
This holiday apartment offers all the comforts and attention to detail of a boutique lodge. The Penthouse Suite Borghese is a combination the two larger rooms creating a spacious well-equipped apartment.




6 Adults
80 sqm
Drinks, Snacks, Wi-Fi
Living area with 2x Bar Kitchenette, Hammam + 2x Chromotherapy



Mahogany feather Chiffonier
Sicily
(1800)
Paola Navone
Ghost Sofa Bed
Gervasoni
Mahogany feather Secretaire
Sicily
(1700)
Boqa
Acapulco Chair
(1950s)
Bernard Schottlander
DCW Mantis Wall Lamp
(1951)
Greta Grossman
Gräshoppa Floor Lamp
(1947)

Try another room









